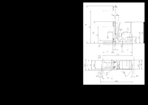
Таблиця з даними для Montini MR Zinc 2.0 Compact

Модель 2011 - 2025 Europe EN

Ця таблиця (PDF) буде надіслана на вашу поштову скриньку після того, як ви вкажете свою адресу електронної пошти.

  • оригінальна таблиця з даними від виробника
  • більше інформації
  • детальна специфікація

*Правила та умови

Застосовується політика конфіденційності компанії LECTURA GmbH, яка також містить додаткову інформацію про можливості виправлення, видалення та блокування моїх даних.

Електричні навантажувачі Montini MR Zinc 2.0 Compact



показати детальну специфікацію