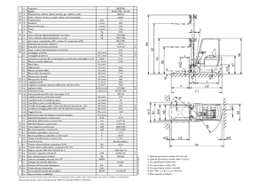
Таблиця з даними для Montini Bingo Zinc 163 GA

Модель 2011 - 2016 Europe IT

Ця таблиця (PDF) буде надіслана на вашу поштову скриньку після того, як ви вкажете свою адресу електронної пошти.

  • оригінальна таблиця з даними від виробника
  • більше інформації
  • детальна специфікація

*Правила та умови

Застосовується політика конфіденційності компанії LECTURA GmbH, яка також містить додаткову інформацію про можливості виправлення, видалення та блокування моїх даних.

Електричні навантажувачі Montini Bingo Zinc 163 GA



показати детальну специфікацію