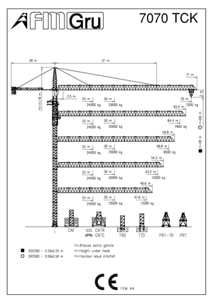
Таблиця з даними для FM-Gru 7070 TCK P20

Модель 2017 - 2023 Europe DE, EN, ES, FR, IT

Ця таблиця (PDF) буде надіслана на вашу поштову скриньку після того, як ви вкажете свою адресу електронної пошти.

  • оригінальна таблиця з даними від виробника
  • більше інформації
  • детальна специфікація

*Правила та умови

Застосовується політика конфіденційності компанії LECTURA GmbH, яка також містить додаткову інформацію про можливості виправлення, видалення та блокування моїх даних.

Баштові крани - штанга струмоприймача - верхнеповоротні FM-Gru 7070 TCK P20



показати детальну специфікацію